電壓繼電器生產廠家-上海上繼科技有限公司
發表時間:2019-07-08 15:39 瀏覽次數:1072 〖返回〗
上海上繼科技有限公司是一家專業從事電力系統繼電保護及智能電網電力自動化產品的研發、設計、生產、銷售和服務為一體的高科技公司。擁有資深繼電保護專家團隊和國內**的檢測儀器及校驗設備。同時還引用國內外先進技術,來進行技術創新。本公司的產品廣泛用于電力、工礦、鐵路、建筑等國家重大工程輸配變電系統上,產品遠銷東南亞及中東地區。產品通過國家繼電保護及自動化設備質量監督檢驗中心檢測,獲得ISO-9001:2000國際質量體系認證。“科技創新,誠信務實”是公司的經營理念,本公司以高超的技術支持和對用戶高度負責的售后服務贏得了輸配電成套企業的信賴,且樹立了良好的信譽。

JY-ZB直流高低值電壓繼電器為直流電壓自動調節測試元件,適用于電力保護系統, 鎳隔電池屏等直流電壓監視配套使用。
一、JY-ZB電壓繼電器的參數
1.額定直流電壓: 110V、220V
2.動作整定范圍:
額定直流電壓110V:高值110V-150V,低值80V-110V;
額定直流電壓220V:高值220V-260V,低值190V-220;
3.動作時間: 2倍動作值時,動作時間不大于20ms
4.定值誤差:不大于±2%
5.返回系數:高值不小于0.97 ,低值不大于1.02
6.功耗:在額定電壓下,繼電器功耗不大于6W
7.觸點性能:當時間常數為5ms的電感性負載時,繼電器觸點斷開容量為交流電壓250V時,交流不大于2A,直流電壓為24V時,電流不大于5A。
8.絕線電阻:繼電器外売與各端子間,以及電氣上無聯系的各電路之間的絕緣電阻不小于300M0。
9.介質強度:繼電器外殼與各端子間以及電氣上無聯系的各電路之間的絕緣強度,應能承受2kV, 50Hz交流電壓,歷時1min無閃絡與擊穿。
現象。同組接點間應能承受1kV,50Hz交流電壓,歷時1min無閃絡與擊穿現象。
10.抗干擾性能:符合GB7261和GB6261 ?靜態繼電器及保護裝置的電氣干流試驗? 。
二、JY-ZB電壓繼電器的接線圖

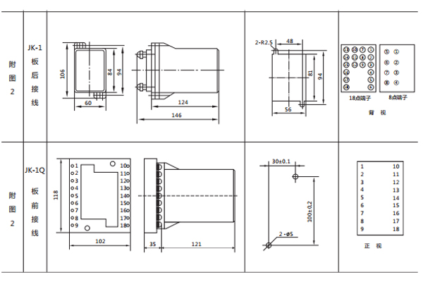
三、JY-ZB電壓繼電器的開孔尺寸
JY-ZB采用JK-1殼體,如圖所示


JY-G端子排靜態電壓繼電器用于電動機、發電機、變壓器和輸電線的繼電保護裝置中作為過電壓保護、欠電壓保護或低壓閉鎖啟動元件。
一、JY-G電壓繼電器的接線圖

二、JY-G電壓繼電器的參數
1、電壓整定范圍: 有輔助電源1~240V或1~440V,無輔助電源15~240V或80~440V;
2、電壓整定級差: 1V;
3、返回系數: 過壓0.90~0.95,欠壓1.02~1.05
4、整定誤差: 電壓整定平均誤差≤±3%,平均誤差=( 5次測量平均值-整定值)/整定值×100%
5、功率消耗: 輔助電源≤5VA;測量電源≤1VA。
6、絕緣電阻: 繼電器各帶電端子對外露非帶電端子或外殼之間, 用開路電壓500V的兆歐表測量,絕緣 電阻>300MΩ。
7、介質強度: 繼電器各帶電端子對外露非帶電端子或外殼之間,能承受2KV(Hz的交流電壓,歷時1分鐘 無擊穿或閃絡現象。
8、抗干擾性: 符合DL478-92 <<靜態繼電保護裝置及安全自動裝置通用技術條件>>和GB7261、GB6261 <<靜態繼電器及保護裝置的電氣抗干擾試驗>>中的有關規定。
9、觸點容量: 繼電器觸點在電壓不大于250V,電流不大于2A的直流有感負荷(時間常數為5ms±0.75ms)電路中,斷開容量為50W; 在電壓不大于250V,電流不大于1A的交流電路中(功率因數為0.4±0.1),斷開容量為250V。觸點接通容量為DC250VA、AC250VA。
10、觸點壽命: 電壽命105次 ,機械壽命105次。
11、動作時間:≤25ms(過壓1.2倍整定值,欠壓0.8倍整定值)
12、返回時間:≤25ms(過壓0.8倍整定值,欠壓1.2倍整定值)
13、輔助電源: AC/DC 48 V,110V,220V;訂貨時請注明其它電壓等級可訂做。(交直流通用)
14、測量電源: 有輔助電源產品的測量電源 1~240V或1~440V,無輔助電源產品的測量電源15~240V或80~440V。
三、JY-G電壓繼電器的開孔尺寸

上海上繼科技有限公司(專注電力保護繼電器生產廠家)銷售熱線:021-57233089 QQ:1932551438
{以上內容僅供參考,上海上繼科技有限公司有最終解釋權}
更多繼電器精彩文章——DXM-2A信號繼電器技術數據及開孔尺寸
- 上一篇:電壓繼電器廠家簡介
- 下一篇:單相數顯交流頻率表廠家介紹





