JZ-J-416靜態中間繼電器工作原理及開孔尺寸-上海上繼科技有限公司
發表時間:2019-10-22 21:40 瀏覽次數:865 〖返回〗
一、JZ-J-416靜態中間繼電器工作原理
JZ-J-416靜態中間繼電器采用集成電路原理構成,具有良好的抗振動,適用于各種電力繼電保護和自動控制裝置中,以增加保護和控制回路的觸點容量和觸點數量。
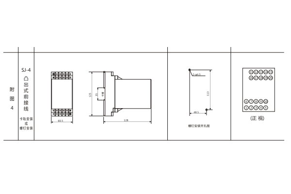
二、JZ-J-416靜態中間繼電器外形尺寸及開孔尺寸

三、JZ-J-416靜態中間繼電器主要性能
常規100V和220V的電磁型中間繼電器所用導線很細,匝數也多,造成容易斷線,可靠性低,動作時間和返回時間本系列中l間繼電器采用靜態電子控制回路控制多個密封進口中間同時導通或斷開。 具有以下性能和特點
1、采用高性能密封繼電器、防潮、防塵、不斷線、可靠性高。
2、動作電壓準確,返回系數高,無抖動,功耗低,多個特點同時動作或返回(可控性100%) 。
3、繼電器動作后有燈光指示、有電源指示。
4、繼電器的電氣壽命和機械壽命長。
5、絕緣耐壓水平高。觸點容量大,觸點接觸電阻小。
6、抗干流特性好,可使用于強干擾或電源電壓質量很差的場所。
公司介紹:上海上繼科技有限公司是一家專業從事電力系統繼電保護及智能電網電力自動化產品的研發、設計、生產、銷售和服務為一體的高科技公司。擁有資深繼電保護專家團隊和國內**的檢測儀器及校驗設備。同時還引用國內外先進技術,來進行技術創新。本公司的產品廣泛用于電力、工礦、鐵路、建筑等國家重大工程輸配變電系統上,產品遠銷東南亞及中東地區。產品通過國家繼電保護及自動化設備質量監督檢驗中心檢測,獲得ISO9001國際質量體系認證。“科技創新,誠信務實”是公司的經營理念,本公司以高超的技術支持和對用戶高度負責的售后服務贏得了輸配電成套企業的信賴,且樹立了良好的信譽。
上海上繼科技有限公司(專注電力保護繼電器生產廠家)銷售熱線:021-57233089 QQ:1932551438
{以上內容僅供參考,上海上繼科技有限公司有最終解釋權}
更多繼電器精彩文章——JZ-J-414靜態中間繼電器接線圖及技術要求





